شرکت فناوری Ningbo Hongjia CNC ، آموزشی ویبولیتین خانه / محصولات / سری ماشین های چرخش ، فرز و حفاری معمولی / دستگاه آسیاب میز جهانی بلند کردن X6132

دستگاه آسیاب میز جهانی بلند کردن X6132

معرفی و استفاده محصول
این ابزار ماشین نوعی ابزار برش فلزی قوی است ، ابزار دستگاه از استحکام قوی ، دامنه سرعت خوراک گسترده برخوردار است و می تواند تراشه های بار سنگین را تحمل کند. سوراخ مخروط دوک نخ ریسی را می توان به طور مستقیم یا از طریق لوازم جانبی برش های آسیاب استوانه ای مختلف ، برش های آسیاب دایره ای ، برش های تشکیل دهنده ، برش های آسیاب صورت ، و سایر ابزارها ، مناسب برای پردازش قسمت های مختلف هواپیما ، شیب ، شیار ، سوراخ و غیره ، تجهیزات پردازش ایده آل برای ساخت ماشین آلات ، قالب ، ساز ، ساز ، موتور ، موتورسیکلت و صنایع را نصب کرد.

+ با ما تماس بگیرید
  • دستگاه آسیاب میز جهانی بلند کردن X6132

اطلاعات تولیدی

ویژگی های اصلی ساختاری
1 ، پایه ، بدنه ، میز کار ، اسلاید ، اسلاید بلند کردن و سایر اجزای اصلی از مواد با استحکام بالا و درمان پیری مصنوعی استفاده می شود تا از پایداری طولانی مدت ابزار دستگاه اطمینان حاصل شود.
2 ، تحمل شفت اصلی ابزار ماشین آلات یک یاتاقان غلتکی است ، شافت اصلی سه ساختار پشتیبانی را اتخاذ می کند ، سفتی سیستم شافت اصلی خوب است ، ظرفیت تحمل قوی است ، و شافت اصلی ترمز مصرف انرژی را پذیرفته است ، گشتاور ترمز بزرگ است و توقف سریع و قابل اعتماد است.
3 ، زاویه چرخش افقی جدول ± 45 درجه ، دامنه پردازش ابزار ماشین را گسترش می دهد. قسمت اصلی انتقال و قسمت خوراک جدول کار ساختار انتقال دنده را اتخاذ می کند ، دامنه تنظیم سرعت گسترده است و تغییر سرعت راحت و سریع است.
4 ، جدول X/Y/Z Direction دارای خوراک دستی ، فید تلفن همراه و سریع به جلو سه ، سرعت خوراک می تواند نیازهای مختلف پردازش را برآورده کند. خوراک سریع می تواند باعث شود قطعه کار به سرعت به حالت پردازش برسد ، پردازش راحت و سریع است و زمان غیر پردازش کوتاه می شود.
5 ، x ، y ، z سه جفت راهنمای جهت توسط خاموش کردن فوق العاده Audio ، سنگ زنی دقیق و درمان خراش ، با روغن کاری اجباری ، بهبود دقت ، افزایش عمر سرویس دستگاه را افزایش می دهد.
6. دستگاه روغن کاری می تواند پیچ ​​و مهره سرب طول ، افقی ، L و عمودی را برای روغن کاری ، کاهش سایش ابزار ماشین و اطمینان از عملکرد کارآمد ابزار دستگاه. در عین حال ، سیستم خنک کننده با تنظیم نازل برای تأمین نیازهای مختلف پردازش ، اندازه جریان خنک کننده را تغییر می دهد.
7 ، طراحی ابزار ماشین مطابق با اصل ارگونومیک ، آسان برای کار کردن. پانل عملیاتی با نمادهای مجسمه ای طراحی شده است که ساده و بصری است.

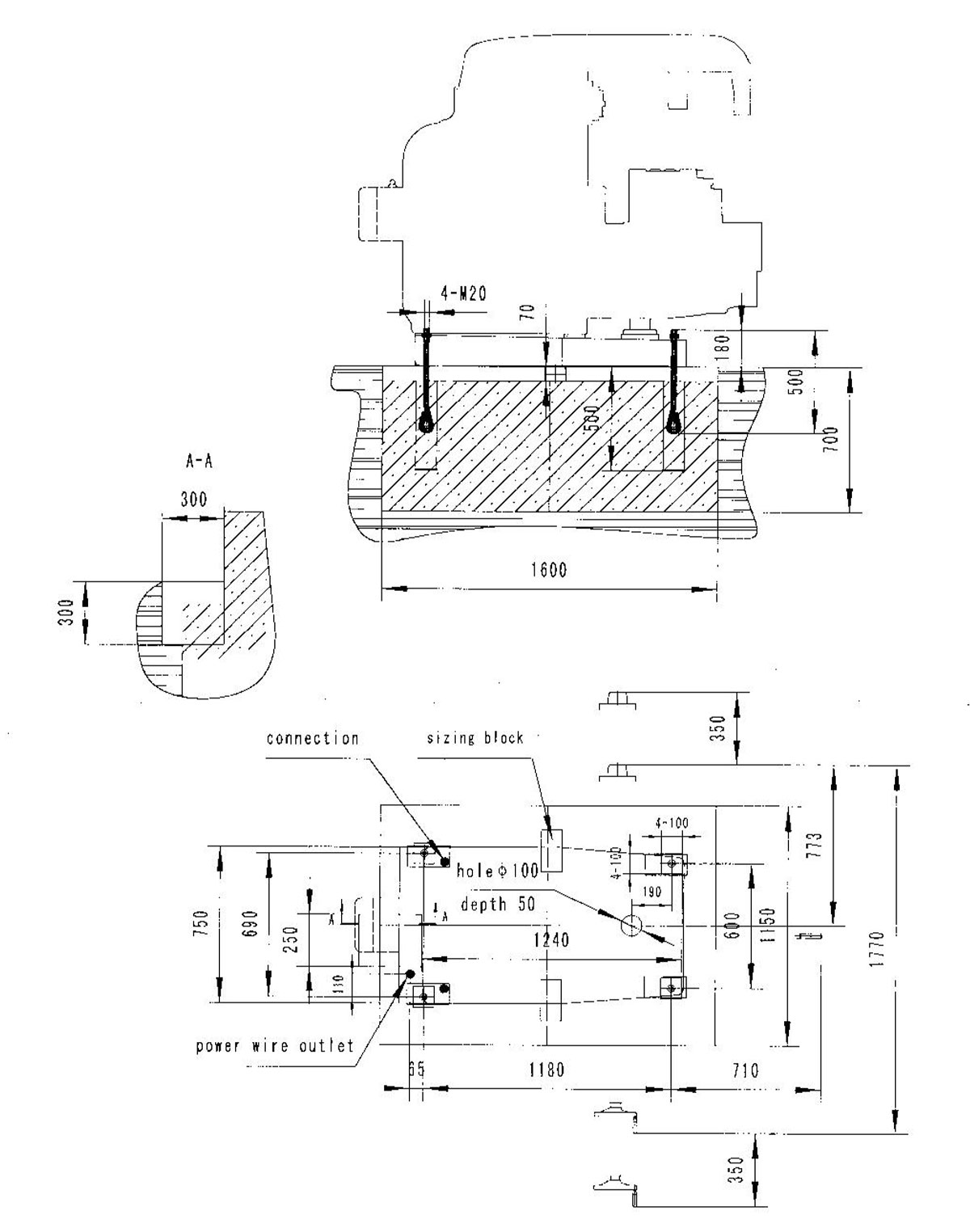
پارامترهای فنی اصلی ابزارهای ماشین

مخزن سوراخ شافت اصلی 7:24 ISO50
فاصله از خط مرکز اسپیندل به ریل راهنمای عمودی ریل 30-350 میلی متر
فاصله از خط مرکز اسپیندل تا پرتوی سیستم تعلیق 155 میلی متر
دیافراگم دوک 29 میلی متر
حداکثر زاویه چرخش جدول 45 درجه
دامنه/سری سرعت دوک نخ ریسی 30 ~ 1500 RPM /18 سطح
اندازه جدول 1320x320 میلی متر
جدول سکته مغزی طولی/عرضی/عمودی 700 (680/255 (240)/320 (300) مگنی
دامنه خوراک جدول طولی/عرضی/عمودی سطح 18 23.5-1180/23.5-1180/8-394 میلی متر در دقیقه
جدول سرعت سریع حرکت عمودی/افقی/عمودی 2300/2300/770 میلی متر/دقیقه
تعداد ، عرض و فاصله شکافهای T شکل میز کار 3/18/70 میلی متر
قدرت حرکتی اصلی 7.5 کیلو وات
تغذیه موتور 1.5 کیلو وات
ابعاد ماشین (L x W x H) 2294x1770x1665 میلی متر
وزن ماشین خالص 2700/3000 کیلوگرم $ $

در تماس باشید

+ SUBMIT
شرکت فناوری Ningbo Hongjia CNC ، آموزشی ویبولیتین
شرکت فناوری Ningbo Hongjia CNC ، آموزشی ویبولیتین
شرکت فناوری Ningbo Hongjia CNC ، آموزشی ویبولیتین در سال 2006 آغاز شد و در سال 2018 تأسیس شد. در منطقه Qianwan New ، Ningbo City ، استان ژجیانگ ، بال جنوبی چین یانگ تسه منطقه دلتا منطقه واقع شده است. این شرکت متخصص در تحقیق ، توسعه ، تولید و فروش تجهیزات برش فلز CNC است. به عنوان یک چین دستگاه آسیاب میز جهانی بلند کردن X6132 supplier and custom دستگاه آسیاب میز جهانی بلند کردن X6132 companyHongjia CNC با قدرت فنی قوی و تجربه صنعت غنی ، متعهد است که راه حل های پیشرفته CNC را برای تأمین نیازهای مشتریان در صنایع مختلف ارائه دهد.
گیاه و تجهیزات
  • ظاهر کارخانه
  • ظاهر کارخانه
  • تجهیزات
  • تجهیزات
  • تجهیزات
  • تجهیزات
  • تجهیزات
چه خبر است
دانش صنعت

دستگاه آسیاب میز جهانی بلند کردن X6132 ، به عنوان محصولی از Hongjia CNC ، به دلیل توانایی برش فلزی قدرتمند و کاربرد گسترده ، در بسیاری از صنایع شهرت بالایی کسب کرده است. این ابزار ماشین نه تنها به اندازه کافی سفت و سخت است که در برابر عملیات برش بار سنگین مقاومت می کند ، بلکه به طیف گسترده ای از سرعت خوراک مجهز شده است تا از ثبات و کارآیی فرآیند پردازش اطمینان حاصل شود. طراحی سوراخ اسپیندل آن انعطاف پذیر است ، و برش های آسیاب استوانه ای مختلف ، برش های آسیاب دایره ای ، برش های آسیاب تشکیل دهنده ، برش های آسیاب صورت و غیره را می توان مستقیماً یا از طریق لوازم جانبی نصب کرد ، فراهم کردن امکانات نامحدود برای پردازش قطعات مختلف مانند نقشه ها ، بول ها ، شیارها ، سازهای سازگار ، و غیره. و صنایع دیگر

صنایع دستی نفیس ، بازیگران کیفیت عالی
Hongjia CNC می داند که کیفیت بالا از پیگیری نهایی جزئیات حاصل می شود. اجزای اصلی دستگاه آسیاب میز جهانی بلند کردن x6132 ، مانند پایه ، بدن ، میز کار ، اسلاید ، اسلاید بلند کردن و غیره ، همه با مواد با استحکام بالا و با سن مصنوعی ریخته می شوند ، که به طور موثری از بین می رود و ثبات طولانی مدت و پیش بینی دقیق ابزار دستگاه را تضمین می کند. اسپیندل یاتاقان های غلتکی را که همراه با یک ساختار سه پشتیبانی است ، تصویب می کند ، که نه تنها از استحکام سیستم خوب و ظرفیت بار قوی برخوردار است ، بلکه مجهز به یک ترمز با انرژی مصرف کننده است ، با گشتاور ترمز بزرگ و خاموش کردن سریع و قابل اعتماد ، تضمین کاملی برای پردازش با دقت بالا دارد.

انعطاف پذیر و قابل تغییر ، مرزهای پردازش را گسترش می دهد
به منظور تأمین نیازهای متنوع پردازش ، زاویه چرخش افقی از کار دستگاه آسیاب میز جهانی بلند کردن X6132 می تواند به 45 درجه پوند برسد. این طرح دامنه پردازش ابزار ماشین را تا حد زیادی گسترش می دهد. در عین حال ، قسمت اصلی انتقال و بخشی از خوراک کارگروه یک ساختار انتقال دنده را با دامنه تنظیم سرعت گسترده و تغییر سرعت راحت و سریع اتخاذ می کند و باعث می شود فرآیند پردازش انعطاف پذیر و کارآمدتر شود. از نظر حالت تغذیه ، دستورالعمل های X/Y/Z ابزار دستگاه دارای سه حالت است: تغذیه دستی ، تغذیه موتوری و تغذیه سریع موتوری. سرعت تغذیه با توجه به نیازهای مختلف پردازش قابل انعطاف است. عملکرد سریع تغذیه به قطعه کار اجازه می دهد تا به سرعت به موقعیت پردازش برسد ، زمان غیر پردازش را به شدت کوتاه کند و راندمان پردازش کلی را بهبود بخشد.

تولید دقیق ، عمر خدمات گسترده
از نظر پردازش جزئیات ، ریل های راهنمای x ، y و z از دستگاه آسیاب جهانی بلند کردن x6132 به صورت اولتراسونی خاموش شده اند ، زمین دقیق و خراشیده شده اند ، و سیستم روغن کاری اجباری نه تنها به طور قابل توجهی دقت پردازش را بهبود بخشیده است ، بلکه عمر سرویس دستگاه را نیز به طور مؤثر افزایش داده است. دستگاه روغن کاری می تواند روغن کاری پیچ های سرب را وادار کند و ریل ها را در جهت های طولی ، عرضی و عمودی هدایت کند و به طور موثری سایش ابزار ماشین را کاهش داده و از عملکرد کارآمد و پایدار ابزار دستگاه اطمینان حاصل کند. علاوه بر این ، سیستم خنک کننده به طور انعطاف پذیر جریان خنک کننده را با تنظیم نازل تنظیم می کند تا نیازهای خنک کننده را در شرایط مختلف پردازش برآورده کند ، و باعث بهبود بیشتر کیفیت و کارآیی پردازش می شود.

طراحی انسانی ، فرآیند عملکرد ساده
Hongjia CNC در هنگام طراحی دستگاه آسیاب میز جهانی بلند کردن X6132 ، راحتی تعامل انسان را به طور کامل در نظر گرفت. طراحی کلی ابزار ماشین سازگار با اصول ارگونومی است ، به راحتی کار می کند و استفاده از آن آسان است. کنترل پنل یک طرح نماد گرافیکی را اتخاذ می کند ، که بصری و درک آن آسان است. حتی اپراتورهای بار اول می توانند به سرعت بر آن تسلط داشته باشند ، که باعث کاهش مشکل در کار و بهبود کارآیی کار می شود. $ $

در هنگام نیاز به ما دریغ نکنید!